Aby powiększyć, kliknij na zdjęciu. | NOWE MIESZKNAIE 3 POK / STAN DEWELOPERSKI/ TARAS/ BALKON/ WINDA/ GARAŻ Rodzaj budynku: blok mieszkalny Układ pomieszczeń: rozkładowe Rodzaj własności: własność Stan techniczny: stan deweloperski Kuchnia: aneks kuchenny, połączona z salonem Ciepła woda: piec 2-funkcyjny gazowy Media: gaz z sieci, woda z sieci, prąd, kanalizacja miejska Pozostałe informacje: pomieszczenie przynależne, internet, garaż, miejsce parkingowe 
GOTOWE MIESZKANIE z TARASEM I BALKONEM - BUDYNEK 2022 R. - STAN DEWELOPERSKI - KOMÓRKA/ GARAŻ PODZIEMNY
Oferta bezpośrednio od dewelopera. Bez prowizji oraz podatku PCC
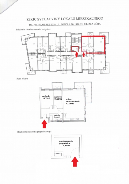
Oferujemy do sprzedaży nowe, przestronne mieszkanie 3 pokojowe o pow. 80,65m2 z dużym tarasem i balkonem.
SKŁAD MIESZKANIA:
-przestronny pokój dzienny z aneksem kuchennym (42,05m2)
-2 sypialnie (14,17m2 i 10,03m2)
-łazienka z wc (5,66m2)
-przedpokój (8,74m2)
-taras (ok.12m2) oraz balkon (ok.3,7m2)
OPIS NIERUCHOMOŚCI
- 80,65m2 - I piętro
- budynek z windą
- rok budowy 2022r.
- zakup bez podatku PCC
-miejsce parkingowe w garażu podziemnym oraz przed budynkiem
- mieszkanie bardzo słoneczne - wystawia południowo-wschodnia
- lokal sprzedawany jest w stanie deweloperskim
- ogrzewanie podłogowe (zasilane z własnego pieca gazowego 2-funkcyjnego)
-teren posesji ogrodzony, zagospodarowany zielenią
-wystawa mieszkania południowo-wschodnia
- widok na Rudawy Janowickie, wokół niska zabudowa
DO MIESZKANIA PRZYNALEŻY:
-komórka lokatorska o pow. ok. 5,92m2, znajdująca się na tej samej kondygnacji, co mieszkanie - w cenie dodatkowo 20.000 zł brutto
- miejsce parkingowe w garażu podziemnym w cenie dodatkowo 35.000 zł brutto; ogólnodostępne miejsca parkingowe znajdują się przed budynkiem
CENA
-lokal 604.875,00 zł brutto
-komórka lokatorska 20.000,00 zł brutto
- stanowisko w garażu 35.000,00 zł brutto
SUMA: 659.875,00 brutto *Niniejsza oferta, nie jest ofertą handlową w rozumieniu Kodeksu Cywilnego, ma ona charakter jedynie informacyjny i może ulec zmianie. Osoba odpowiedzialna zawodowo:Izabela Binkowska - lic. zaw. 10728 - sprawdź |